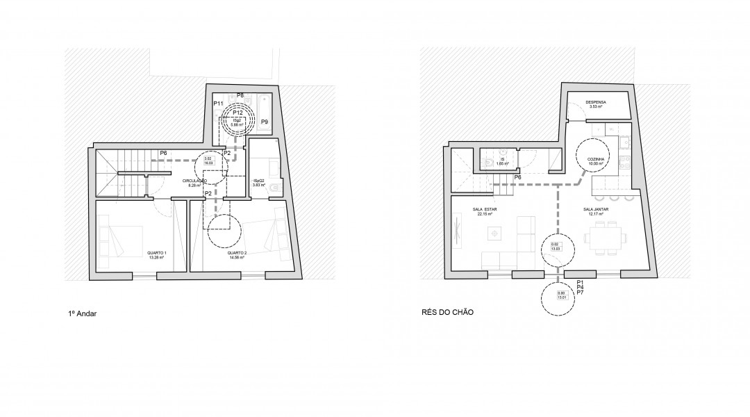
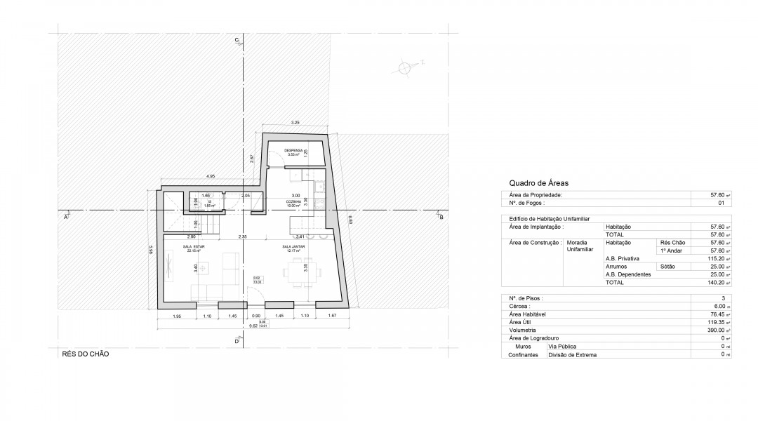
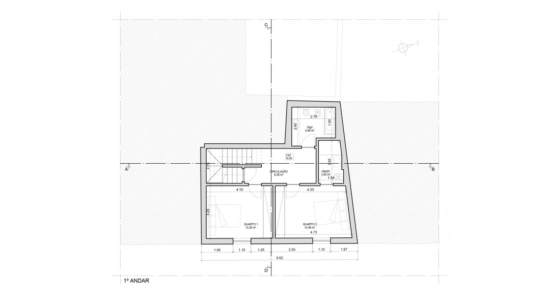
Moradia - Peniche Rés do Chão Sala de jantar– 12,17 M Sala de estar– 22,15 M Cozinha – 10 M Despensa -3.53 M WC – 1,65 M 1º Andar Quarto 1 – 13,28 M Quarto 2 – 14,56 M (WC - 3.83 M) WC – 5,88 M SÓTÃO Arrumos – 19,73 M PREÇO - VENDIDO Alçado Posterior - OesteSotãoRés do ChãoAlçado Lateral - NorteCorteCortePlanta de Acessibilidades1º AndarAlçado Lateral - SulAlçado Principal - EsteCobertura Planta de implantação do imóvel